--   |  设为首页

帮忙装修网

中山

[切换]

中山旧房改造案例,90m²极简风格三居室装修效果图

来自:中山帮忙装修网 日期:2022-03-11 15:53:11 177644 次 分享到:
导读:
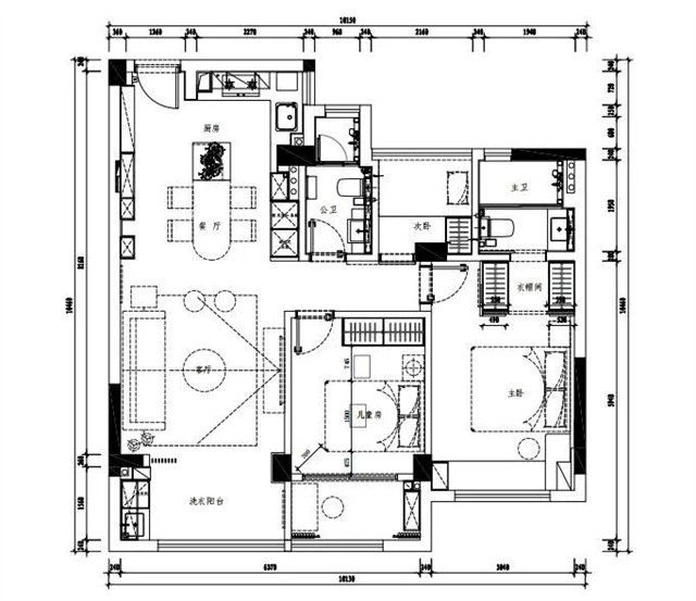
这套89㎡的二手学区房靠近商超、临近地铁,是屋主为了孩子读书置换的。户型上,除了次卧和厨房面积有些小之外,采光、得房率都不错。中山帮忙装修网公司分享。

面      积:89平米

户      型:三居室

风      格:极简

▲ 原始结构图

这套89㎡的二手学区房靠近商超、临近地铁,是屋主为了孩子读书置换的。户型上,除了次卧和厨房面积有些小之外,采光、得房率都不错。

屋主需求:

1. 厨房空间要大一点

2. 客厅要有收纳

3. 儿童房空间要大一些

4. 主卧要有个衣帽间

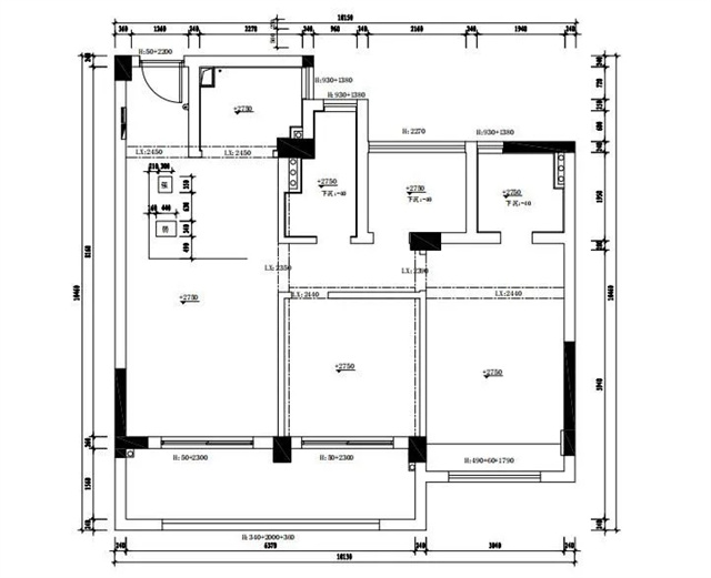
▲ 平面布局图

设计策略:

1. 去掉一部分非承重墙,将原封闭厨房改为开放式。

2. 原主卧和主卫之间的过道连起来,增加过道式衣帽间。

3. 阳台一分为二,儿童房的阳台收进室内,变成了孩子的学习区。

玄关

玄关柜借用了一部分原来墙面内陷的空间,外边框与门框齐平,不会影响到过道走廊。

▲ 入户区的高柜一直延续至客厅

客厅

客厅以原木色和鉻黄色搭配,原木色质感温润,鉻黄色醒目稳重,阳台带来的温暖阳光,营造出静谧优雅的美学氛围,是舒适生活的标配。

硬装线条回归简约,无主灯设计+局部吊顶,让层高更为开阔。

考虑到屋主家宝宝还小,在客厅玩耍时间较多,茶几选择可轻易搬移的。

珊瑚橙单椅纯净浪漫,风从窗外吹来,柔柔的带着春天的味道,整面百叶窗,保留了空间的通透感。

▲ 木栅格,营造虚实相生的意蕴

原来的阳台分出一部分包进客厅,改为兼顾洗晒衣物和休闲的多功能区。洗烘一体机搭配阳台上的智能晾衣架,哪怕是封闭阳台也不怕潮湿问题。

餐厅

LDK空间紧密相连,用吧台做隔断,不但可以帮助厨房分区,还能充当临时备餐区和餐桌,一举两得,增强实用性。

L型开放式厨房布局宽敞明亮,整洁有序,让理想中的美食有了更多的互动性和可能性。

厨房

▲ 改造前

原厨房不仅封边,而且空间小,虽然给餐厅腾出了位置,但这样的厨房用起来实在是太憋屈。

改动后的厨房变成了开放式,原来与玄关隔断的墙体消失不见,餐厅干脆和吧台连成了一个整体。

厨房家电完美利用立体空间合理收纳摆放,留白设计,清新又实用。

主卧

原户型中有一个飘窗,因为结构原因不能敲掉,干脆把飘窗和床头的小桌子连到了一起。

卧室和客厅一样采用了无主灯设计,同时对中央空调的出口做了隐藏化处理。对于吊顶的积灰问题,设计师选择用硅藻泥来解决,这样更不容易积灰。

▲ 新增衣帽间

将休息区和主卫之间的过道改为衣帽间,动线变为床→衣帽间→卫生间,入口采用推拉式移门,不会占用太多空间。

原木搁架和小书桌形成了有效的视觉关联。

儿童房

粉色,女孩从小到大都喜欢的颜色,打造一方梦幻的小小世界,度过珍贵的童年时光。

▲ 从阳台向内看

一组对比图:

▲ 客厅

▲ 厨房

装修预算不够?快来申请装修贷款!月息低至2.5厘。帮忙装修网为解决业主的装修资金难题,特与银行合作推出“装修贷”,一站轻松办理:18824725983 吴先生

长按二维码关注"帮忙装修网",了解更多装修资讯↓↓↓

或拨打免费热线:13822775923

已成功招标53521